Public Appeal launched
Public Appeal launched by Littlebourne Parish Council to help fight the planning Appeal that has been submitted by Gladman for the 300 homes on The Hill
Published: 28 October 2025
CALL FOR PUBLIC DONATIONS TO SUPPORT LITTLEBOURNE’S CASE AT PUBLIC INQUIRY
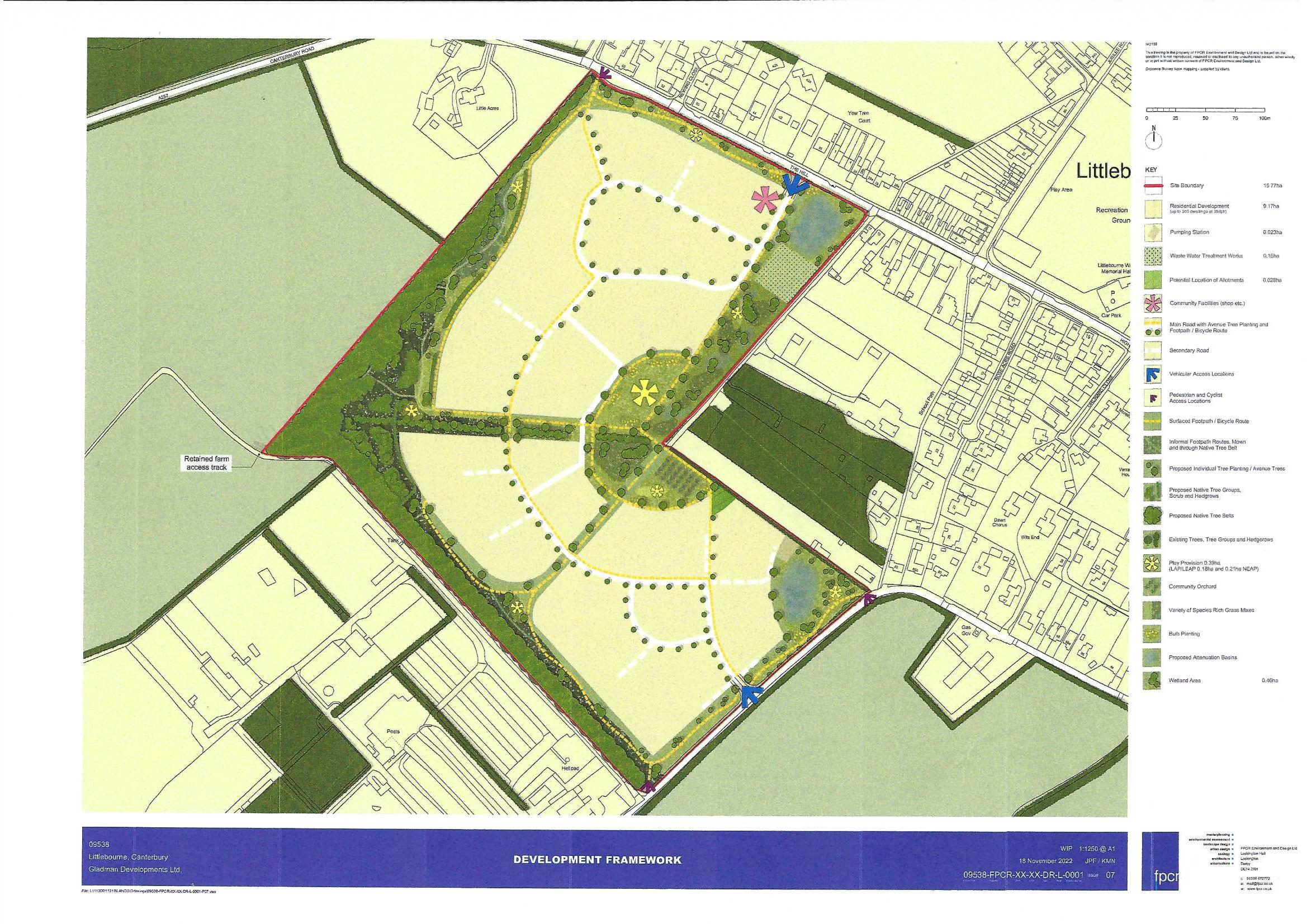
Gladman Developments has requested a Public Inquiry by the national Planning Inspectorate to try and overturn the City Council’s refusal of planning permission for 300 houses to be built on the south side of The Hill. The Inspectorate has agreed to the Inquiry which will be held in February 2026. Your parish council believes that it should be formally represented at the Inquiry to bring the key local perspective and to reinforce the wish of the village for this development on prime agricultural land to be refused. This quasi-legal Inquiry will need us to bring clear, evidence-based reasoning to the hearing which will cost the parish significant amounts of money for the necessary expert consultations and, usually, will also be presented by a barrister. The sums involved are likely to exceed our general financial reserves. So, Littlebourne Parish Council has launched a funding appeal to employ such legal and other expert consultation in advance of the Inquiry. If you wish to support the case for refusal, please consider donating to the Littlebourne Parish Council’s appeal at https://gofund.me/af3cd9c0a
If you have questions about this, please contact any of the parish councillors or our parish Clerk (01227 721500).
Littlebourne Parish Council